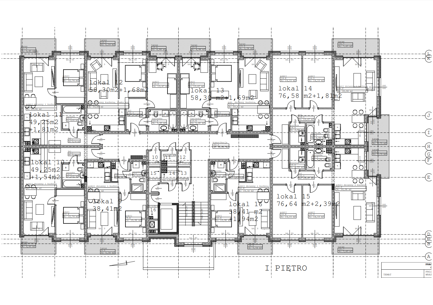
Rozkład mieszkań
Lokal
Powierzchnia
Liczba pokoi
Status
Piętro
Plan lokalu
Plan piętra
Plan garażu



